Hastings
85 Marine Parade, Hastings
Project goal
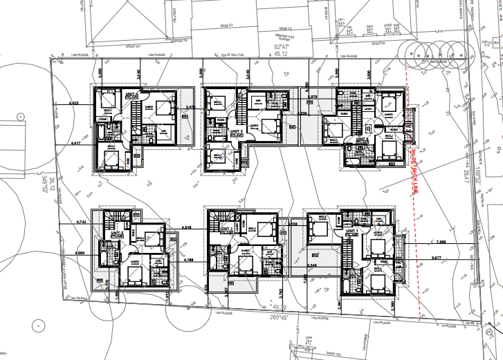
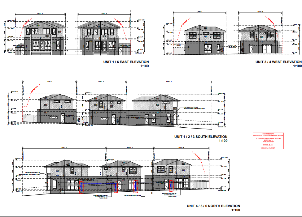
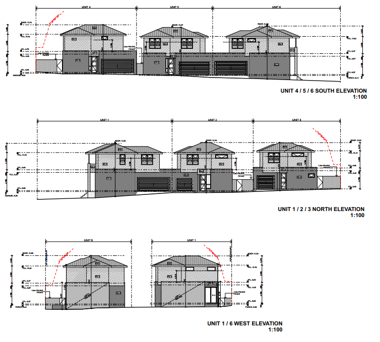
Subdivision of 6 townhouses of 3 bedrooms, 2 bathroom and 2 Garages.
Hastings is a suburb located in the South Eastern Melbourne, and popular with the locals.
LOCATION: 85 Marine Parade, Hastings VIC 3915
BUILD COST: 1.7m
Gross Realised Value (GRV): $4.2 million
PROJECTED PROFIT: $1M
PROJECT START: MAY 2021
CURRENT STATUS
Current status (2023-02-24):
- DA approved
- Build permit in progress
Previous updates
-
- Valuation completed
- Subdivision permit completed
- Build permit completed
-
- Building insurance certificate issued
-
- Subdivision
- Site demolished
- Build contract signed
-
- Stom water Establishment completed
- Build permit in progress
- Energy rating report completed
-
- Council sign off
-
- Build permit commenced
- Asset and amenity protection permit commenced
- Construction management plan in progres
-
- Council Engineering assessment commenced
-
- Engineering drawings completed






- Engineering drawings completed
-
- Notice of decision issued, approved
- Tenants notified to vacate property
-
- Council unresponsive, escalation
-
DA Status:
- Received complaints during RFI period regarding tree on property. 3 planners have signed off, and currently the council vegetation officer is engaged to provide final sign off. If no progress will proceed to taking the case to VCAT.
Pending:
- Working drawings pending final sign off from council
- Tenant vacate property
-
- EPG Gas assessment completed
- Site goes into full RFI
-
- Gas Assessment completed, sent to council
- Traffic Engineering completed
- Arborist report completed
-
- Council notified Cultural Heritage report is required
- Council notified Cultural Heritage report is required
-
- Settlement Completed
- Town Planning and Surveying Completed
- MPL Certificate lodged
- Building insurance settled
- Council Town planner assigned
-
Site Acquired
- 120 days extended settlement
- Full access to site during the settlement period
- Town Planning commence